MLS #2393904 / Listing provided by NWMLS .
Sold by Horizon Real Estate.
$995,000
                                    8269 S 118th Court
                                 
Seattle,
                                
                                    WA
                                 
                                    98178
                                
Beds
Baths
Sq Ft
Per Sq Ft
Year Built
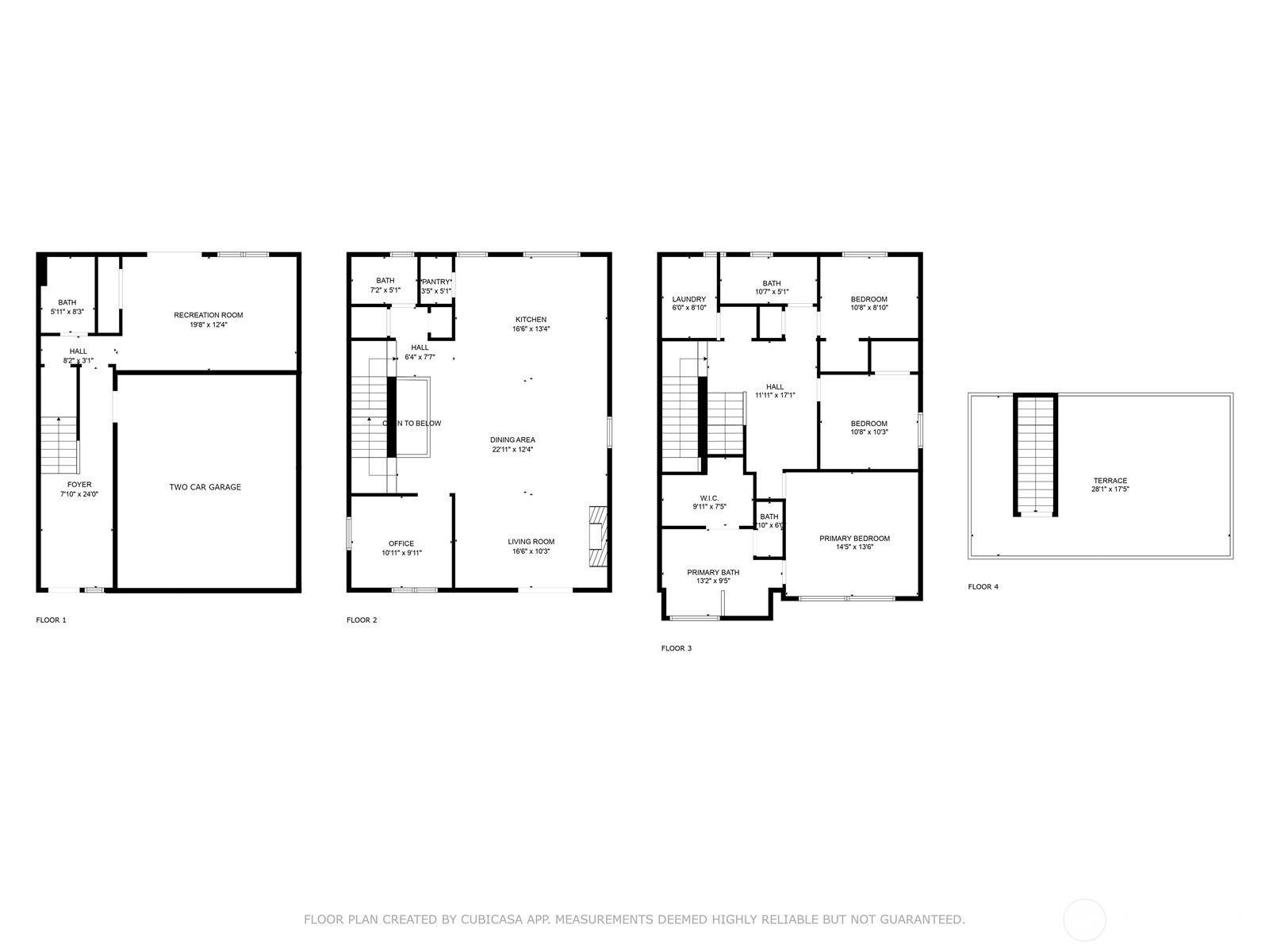
Welcome to this gorgeous home on a corner lot with sweeping lake & mountain views! The perfect blend of comfort and style tucked at the end of a private cul de sac, impeccably finished from top to bottom. Enter via front door or attached garage and find the large ground floor bedroom with ensuite that can serve as rec room or guest suite. One floor up, stunning open kitchen/living/dining, ideal for entertaining, and office with views. 3 beds & laundry on third level including primary suite with dreamy sunrise views. Roof deck offers stunning panorama in all directions. Backyard patio perfect for lounging and stargazing! Next to community pond for bird sightings and .1 mi to Bryn Mawr Elementary. Quick drive to downtown, Bellevue and Seatac.
Disclaimer: The information contained in this listing has not been verified by Hawkins-Poe Real Estate Services and should be verified by the buyer.
Bedrooms
- Total Bedrooms: 4
 - Main Level Bedrooms: 0
 - Lower Level Bedrooms: 1
 - Upper Level Bedrooms: 3
 - Possible Bedrooms: 4
 
Bathrooms
- Total Bathrooms: 4
 - Half Bathrooms: 1
 - Three-quarter Bathrooms: 0
 - Full Bathrooms: 3
 - Full Bathrooms in Garage: 0
 - Half Bathrooms in Garage: 0
 - Three-quarter Bathrooms in Garage: 0
 
Fireplaces
- Total Fireplaces: 1
 - Main Level Fireplaces: 1
 
Water Heater
- Water Heater Location: Garage
 - Water Heater Type: Gas
 
Heating & Cooling
- Heating: Yes
 - Cooling: Yes
 
Parking
- Garage: Yes
 - Garage Attached: Yes
 - Garage Spaces: 2
 - Parking Features: Attached Garage, Off Street
 - Parking Total: 2
 
Structure
- Roof: Composition
 - Exterior Features: Cement Planked
 - Foundation: Poured Concrete
 
Lot Details
- Lot Features: Corner Lot, Cul-De-Sac, Curbs, Dead End Street, Paved, Sidewalk
 - Acres: 0.0881
 - Foundation: Poured Concrete
 
Schools
- High School District: Renton
 - High School: Buyer To Verify
 - Middle School: Buyer To Verify
 - Elementary School: Bryn Mawr Elem
 
Transportation
- Nearby Bus Line: true
 
Lot Details
- Lot Features: Corner Lot, Cul-De-Sac, Curbs, Dead End Street, Paved, Sidewalk
 - Acres: 0.0881
 - Foundation: Poured Concrete
 
Power
- Energy Source: Electric, Natural Gas
 - Power Company: Seattle City Light
 
Water, Sewer, and Garbage
- Sewer Company: Skyway Water & Sewer District
 - Sewer: Sewer Connected
 - Water Company: Skyway Water & Sewer District
 - Water Source: Public
 
$4,273.10
 Monthly payment
Loan amount
Over 360 payments
Total interest paid
Pay-off date
Amortization schedule

Lori Jenkins
                    Broker | REALTOR®
Send Lori Jenkins an email















































































